物件の特徴
-
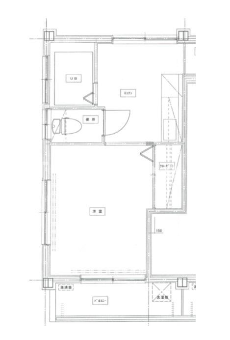
バストイレ別
セールスポイント
来店・電話問合せ限定仲介料0.4ヶ月分♪
●内覧現地対応・オンライン内見が可能物件あり
●他社掲載物件もすべてまとめて紹介可能
●他社で検討中・申込み済みのお客様、初期費用がさらに減額可能か再査定致します
※遠方で来店が難しい方、まずは電話にてお問合せ下さい
※物件の募集状況は掲載日時点での情報になります
最新の募集状況については電話・メールにてお問合せ下さい
ポイント
入居審査 賃貸 初期費用 無職 生活保護 新宿 学生 求職中 休職中 保証人不要 駅徒歩10分以内 クロゼット 2駅利用可 駐輪場 浴室に窓
担当者のコメント
基本情報
- 保証金
- -
- 敷引 / 償却
- - / -
- 敷金積み増し
- -
- 間取り / 詳細
- 1K
洋室 6.0帖/K 3.0帖
- 向き
- 南東
- 専有面積
- 21.50㎡
- バルコニー
(テラス)面積 - -
- 所在階 / 階建て
- 2階 / 4階建
- 建物構造
- 鉄骨造
- 築年月
- 1975年5月(築50年)
- 種別
- 賃貸マンション
- 保険会社 / 料金
- 有 20,000円 / 2年
- 保証会社 / 料金
- 必加入 / その他
初回保証料:総家賃の50%・月額保証料:総家賃の1%・年額保証料:1万円
- 現況
- 居住中
- 入居可能時期
- 相談
- その他条件
- 鍵交換代:2万2,000円 水道料:5,000円(月額)
設備条件
- 設備条件
-
- 保証人不要 / 高齢者相談 / 分割可 / ガスコンロ設置可 / 学生向け / フローリング / バルコニー / 都市ガス / 公営水道 / 公共下水 / 24時間換気システム / 電気有 / 照明器具付き / 駐輪場 / 洗濯機置場有 / ガスコンロ / コンロ2口以上 / バス・トイレ別 / 洗面台 / シャワー / エアコン / インターネット対応 / 角部屋 / 初期費用カード決済可
その他
- 契約期間
- 2年
- 賃貸区分
- 一般
- 更新料
- -
- 更新事務手数料
- -
- 総戸数
- 12戸
- 特優賃
- -
- 取引態様
- 仲介
- 物件番号
- 98406767
- 管理コード
- 0000
- 情報更新日
- 2026年02月05日
- 次回更新予定日
- 2026年02月12日
- 取扱会社
-
- 【ハウスガレージ池袋店】
- 東京都豊島区池袋2丁目60-11 ともビル6階
- TEL:03-5985-5888
- 東京都知事 (2) 第102155号
宅地建物取引業免許 - (公社)全日本不動産協会
(公社)不動産保証協会
(社)東京都不動産関連業協会
全日本不動産政治連盟
- 備考
- 初めての一人暮らしの方、上京や転勤、転職で土地勘がない方、現在お仕事をされていない方や、水商売の方、生活保護を受給されている方、保証人のいらっしゃらない方、初期費等ご予算が不安な方、その他どんなご事情がある方でも、ベテランスタッフがお客様の条件に合ったお部屋をお探しいたします!
急なお引越で何件もまわる余裕がない方でもご来店いただければインターネットに掲載されている物件はもちろん非公開の他社さんの物件もまとめてご紹介できます!
★対応可能条件★
ペット可、楽器可、バイク可、タワーマンション、アパート、一戸建て、ルームシェア、二人入居可、学生可、生活保護可、無職可、フリーター、保証人無、母子家庭、シングルマザー、保証人不要、女性限定、学生限定、駅近、防犯、転勤、転職、法人寮、学生寮などのこだわり条件も!
★対応可能沿線・駅★
JR山手線・埼京線・京浜東北線・西武池袋線・西武新宿線・東武東上線・大江戸線・有楽町線・丸ノ内線・三田線・南北線・千代田線・副都心線・東西線・中央線・総武線・武蔵野線・常磐線・日暮里舎人ライナー
池袋駅・目白駅・高田馬場駅・大塚駅・巣鴨駅・駒込駅・日暮里駅・板橋駅・十条駅・赤羽駅・椎名町駅・練馬駅・江古田駅・大山駅・成増駅・小竹向原駅・要町駅・王子駅・川口駅・板橋本町駅・西台駅・雑司が谷駅・江戸川橋駅・早稲田駅・神楽坂駅・茗荷谷駅・後楽園駅・御茶ノ水駅・白山駅・東大前駅・千駄木駅・南千十駅・飯田橋駅・町屋駅など様々な沿線、駅でも!
★対応可エリア★
都内23区・豊島区・新宿区・練馬区・板橋区・中野区・文京区・北区・荒川区・千代田区・台東区・西東京市・東久留米市・所沢市・和光市・朝霞市・新座市・川口市・戸田市・さいたま市・蕨市以外でもご相談下さい!
☆都内近郊から神奈川、埼玉、千葉のお部屋探しはハウスガレージ池袋店にお任せください!03-5985-5888☆
周辺施設
-
大学
私立女子栄養大学駒込キャンパス
186m(3分)
-
公園
六義園
888m(12分)
-
警察
駒込警察署
1040m(13分)
-
専門学校
東京歯科衛生専門学校
1713m(22分)
-
大学
私立東京福祉大学王子キャンパス
1793m(23分)
-
専門学校
日本医療ビジネス大学校国際情報ビジネス科
1879m(24分)
-
その他
東京大学豊島国際学生宿舎 B棟
1965m(25分)
-
専門学校
コーセー美容専門学校
2000m(25分)
-
市役所・区役所
北区役所滝野川分庁舎
2008m(26分)
-
大学
大正大学
2046m(26分)
-
市役所・区役所
北区役所第一庁舎
2272m(29分)
-
総合病院
日本医科大学付属病院
2765m(35分)
-
図書館
早稲田大学中央図書館
5178m(65分)
近隣の物件
西ヶ原レジデンス
7万円
5,000円
1K(21.50㎡)





ハウスガレージ 池袋店
↓物件詳細をクリック↓
是非ご相談下さい
☆☆POINT☆☆
①仲介料50%OFF~100%OFF対象物件多数あり!
②社会福祉法人『東京チャレンジネット』提携店!
③初期費用分割ご相談下さい!【お客様のご希望の金額でお支払いOK!】
④他掲載物件・インターネット非公開物件を全てまとめてご紹介可能!
⑤インターネット回線取次!引越し会社割引き有り!
⑥家具・家電のリース取扱い有り!
初期費用や保証人についてのご相談、無職(求職中)や生活保護のため他の不動産屋では
なかなか審査が通らなかったという方!
当店では複雑なご事情がおありの方のご成約実績が多数ございます!
あきらめないでまずは一度お話をお聞かせください!どんなご事情の方でも大歓迎です!